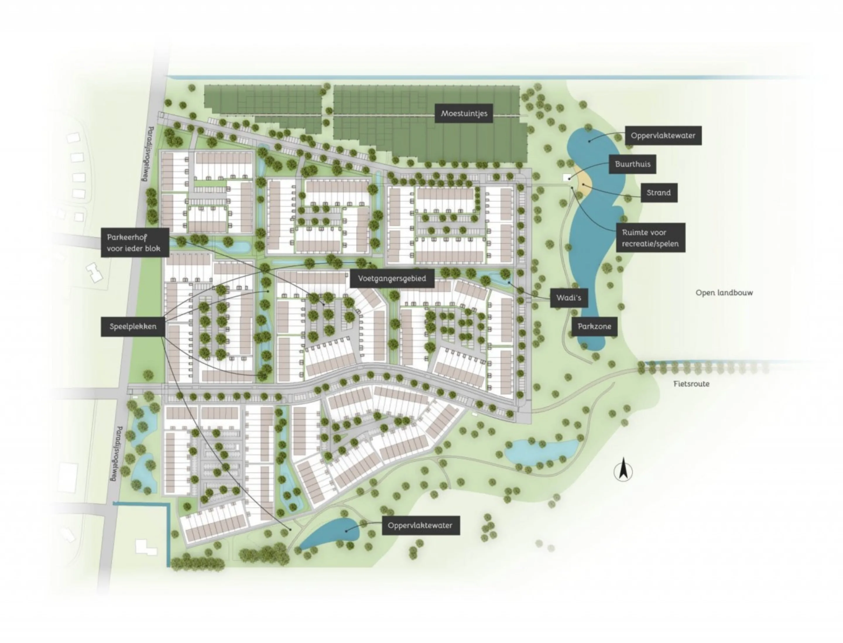
Plankaart Kreekvelden
actueel

de Kreekvelden: een voorbeeld van duurzaamheid!

Gepubliceerd 17 okt 2024

Gisteren werd de oplevering van de eerste 53 woningen in De Kreekvelden gevierd, een duurzame wijk in Almere, ontworpen door ons. Wethouder Paul Tang markeerde dit moment door een boom te planten. De Kreekvelden, gelegen in Oosterwold tussen Almere en Zeewolde, zal uiteindelijk bestaan uit ruim 400 energiezuinige woningen. Opvallend is dat 102 van deze woningen, waaronder de 53 voor woningcorporatie de Alliantie Ontwikkeling B.V., volledig in hout zijn gebouwd met duurzaam LVL-hout. Dit zorgt voor uitstekende milieuprestaties en heeft het project een plek opgeleverd in de Nationale Milieudatabase als voorbeeld van duurzaam bouwen.

De woningen zijn voorzien van zonnepanelen en luchtwarmtepompen, wat ze het energielabel A+++ geeft. De wijk combineert milieuvriendelijk wonen met een groen ontwerp. Wadi’s zorgen voor natuurlijke waterafvoer, en er komt een strand langs de kreek die door het gebied loopt. Naarmate de wijk verder uitbreidt richting het westen, zullen de houten gevels geleidelijk overgaan in baksteen, wat een vloeiende overgang in het straatbeeld biedt.

De Kreekvelden is meer dan een verzameling huizen: het is een toekomstbestendige gemeenschap waar natuur, duurzaamheid en woongenot centraal staan. Het gebied past perfect binnen de experimentele visie van Oosterwold, waar bewoners in harmonie met hun omgeving leven. De volledige wijk wordt medio 2025 opgeleverd, maar de oplevering van deze eerste woningen markeert alvast een belangrijke stap in die richting.

Dit project is geproduceerd door geWOONhout. De hoofdaannemer is Koopmans Bouwgroep | TBI en dit project is in opdracht van de Alliantie Ontwikkeling B.V. uitgevoerd, in samenwerking met o.a. Installatiebedrijf Van Dam