Hotel naast melkhal IAA
actueel

bouw van hotel naast Melkhal vordert

gepubliceerd op 9 mei 2022

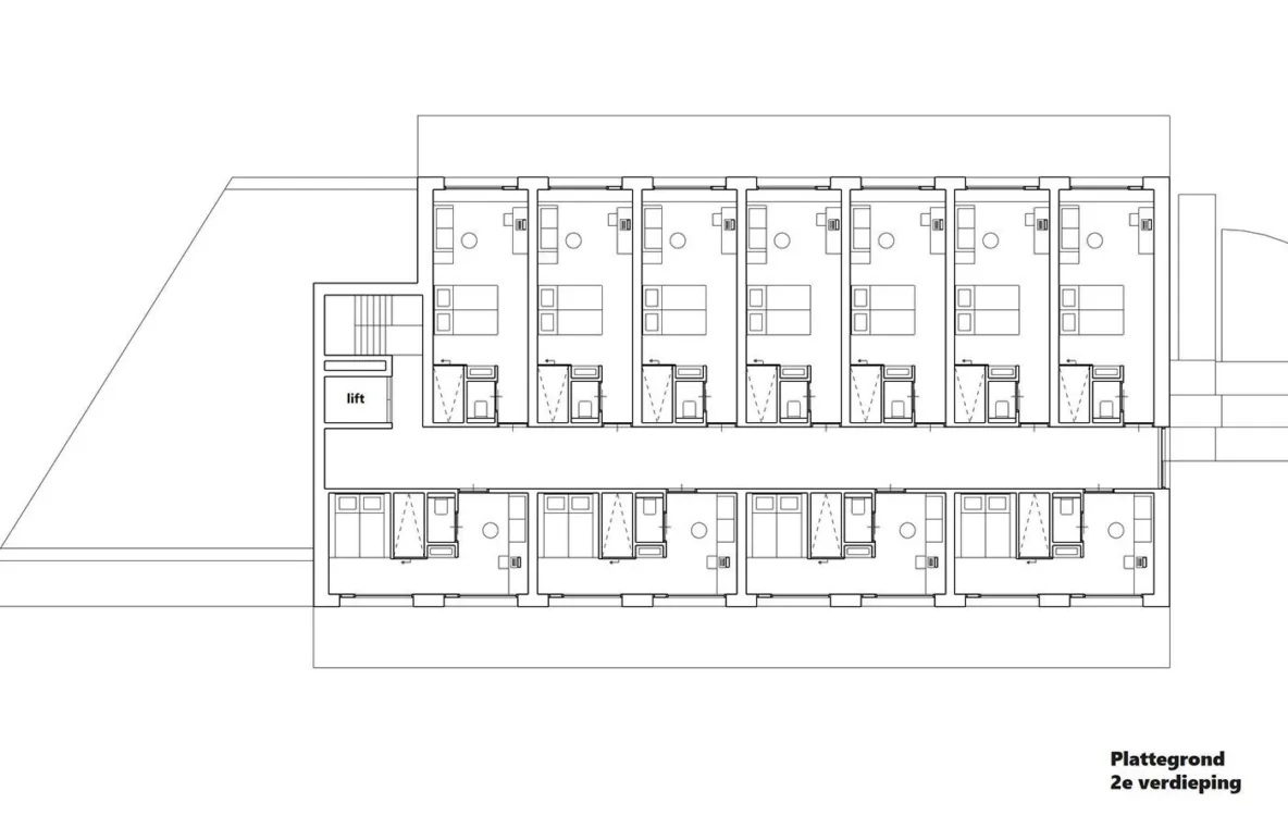
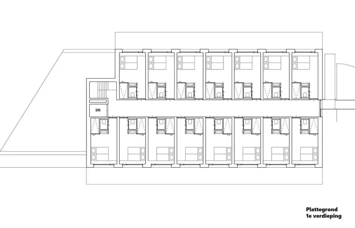
Het hotel van Harald Droste begint vorm te krijgen: de prefab wanden van de begane grond zijn gesteld, hierna kan de aannemer verder met de verdieping. In totaal komen er 26 kamers op de eerste en tweede verdieping. Voor de hotelgasten is er ontbijt, lunch en diner in Droste’s Herberg in de Melkhal, volgens hetzelfde recept als in Droste's Twente in Tubbergen. Net als daar komen de ingrediënten uit de buurt, er wordt zo min mogelijk weggegooid en de kaart is seizoensgebonden en wordt dagelijks aangevuld met nieuwe gerechten. Omdat alleen aangeboden wat de boeren kunnen leveren staat er altijd iets anders op tafel.