Bitmap Pakhuis kleur
betaalbare woningen voor 99 studenten midden in de binnenstad

Het Pakhuis

De opgave is tweeledig: enerzijds het toevoegen van betaalbare, duurzame woonruimte in een binnenstedelijke context, anderzijds het versterken van de identiteit van het Pakhuiskwartier. De vraag naar huisvesting is groot, zeker voor jongeren en starters. Het project biedt hier een antwoord op door compacte studio’s en woongroepen te realiseren. Tegelijkertijd gaat het om meer dan woningen alleen: er wordt ook een sociale opgave ingevuld door collectieve ruimten te creëren die ontmoeting stimuleren.
De opgave is bovendien ruimtelijk: hoe voeg je een gebouw toe dat zowel past in de schaal van de stad als een eigen karakter heeft? Door de keuze voor een robuust architectonisch beeld wordt de continuïteit met de historie gewaarborgd, terwijl moderne technieken zorgen voor duurzaamheid in energie en materiaalgebruik. Zo wordt de opgave integraal aangepakt: functioneel, sociaal en esthetisch.
Plankaart pakhuiskwartier

Van Heek in Enschede

Het project ligt in Enschede, op de hoek van de Molenstraat en de Wenninkgaarde, direct grenzend aan de spoorzone. Dit gebied is een overgangszone tussen de historische binnenstad en de modernere stedelijke uitbreidingen. De locatie kenmerkt zich door de nabijheid van belangrijke stedelijke structuren: de oude pakhuizen, de spoorlijn en de binnenstedelijke straten. Het is een plek waar veel beweging samenkomt - studenten, bewoners, bezoekers van de binnenstad – en daarmee een strategische plek voor stedelijke vernieuwing. De ligging maakt het mogelijk om een brug te slaan tussen verleden en toekomst: de robuustheid van de industriële stad en de dynamiek van de hedendaagse stedelijke leefwereld. Het project vormt daarmee een schakel in een groter geheel van herontwikkeling en transformatie van Enschede als compacte, levendige stad.

 

de rijke textiel geschiedenis

Het Pakhuiskwartier ontleent zijn naam aan de historische pakhuizen die in de 19e en 20e eeuw een belangrijk deel vormden van de Enschedese binnenstad. Deze gebouwen waren direct verbonden met de textielindustrie en de spoorlijn, die de stad tot een industriële kern in Twente maakte. Na de neergang van de textielindustrie verloor het gebied zijn economische functie, maar bleef de karakteristieke architectuur bepalend voor de sfeer. De stoere bakstenen gevels, de verticale ritmiek en de stevige schaal roepen een beeld op van hard werken, van logistiek en handel. In de afgelopen decennia is gezocht naar nieuwe functies voor dit erfgoed. Het huidige project borduurt voort op deze geschiedenis: het verwijst naar de robuuste typologie van de pakhuizen, maar vertaalt dit naar een hedendaagse woonopgave die de stad opnieuw vitaliteit geeft. Zo ontstaat continuïteit in identiteit, maar met een nieuwe betekenis.

Vogelvlucht pakhuis IAA

een nieuw pakhuis

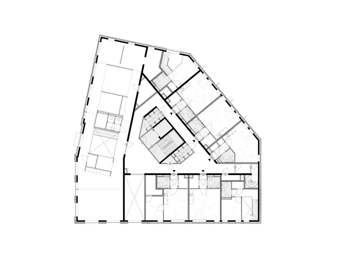
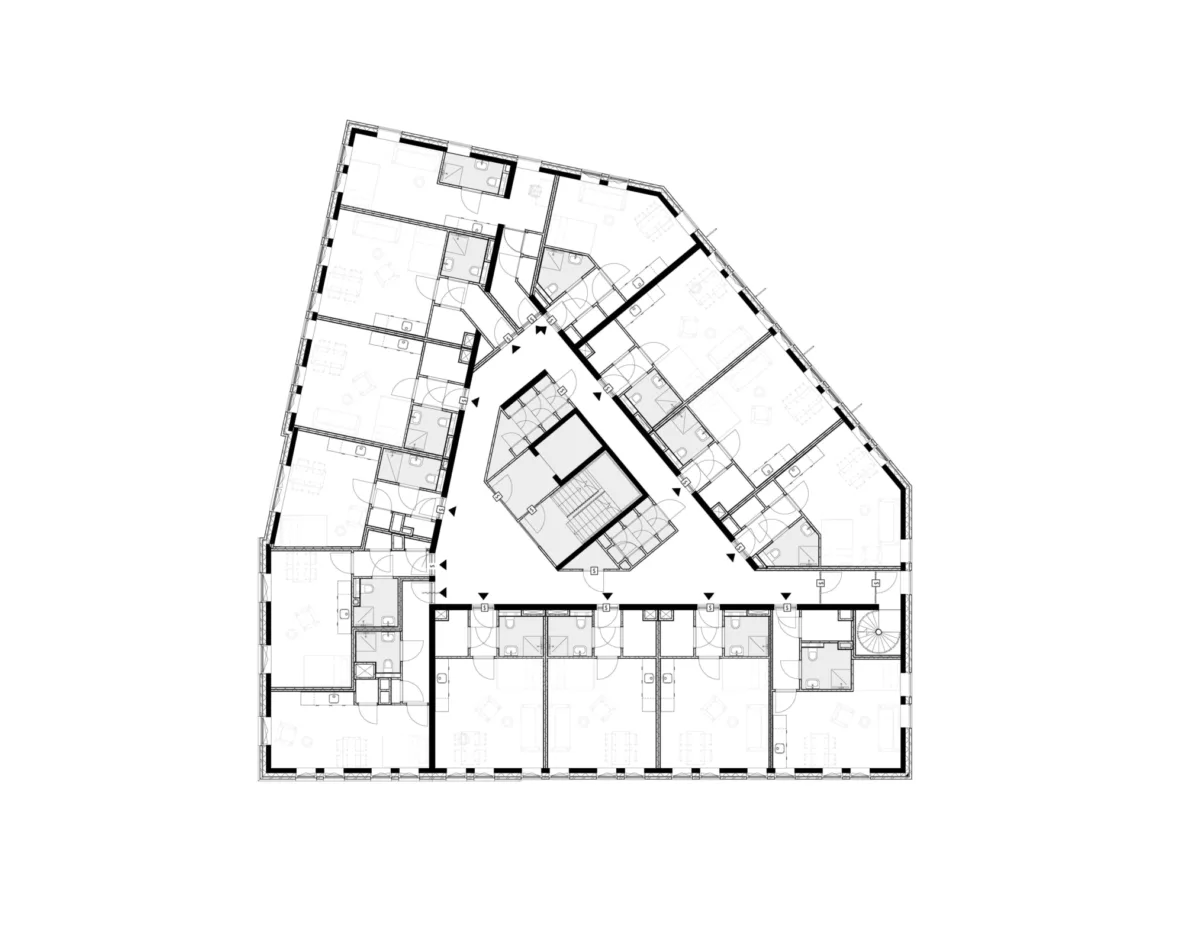
Het concept draait om de herinterpretatie van het pakhuis: stoer, helder en functioneel, maar met een eigentijdse invulling. De robuuste baksteenarchitectuur vormt de basis, waarin ritme, verticaliteit en detail zorgen voor herkenning. Dit wordt gecombineerd met hedendaagse thema’s als duurzaamheid, collectiviteit en betaalbaarheid. Het idee is om een gebouw te maken dat de identiteit van de plek versterkt en tegelijkertijd inspeelt op actuele maatschappelijke vragen. De woningen zijn compact, maar goed doordacht en efficiënt, geschikt voor jongeren en studenten. De collectieve functies als de entree, ontmoetingsruimten en dakterrassen vormen plekken waar bewoners elkaar kunnen ontmoeten en zich thuis voelen in de stad. 

zorgvuldigheid op elk niveau

De architectuur is krachtig in eenvoud en expressie. De gevels zijn opgebouwd uit zorgvuldig gekozen baksteen, waarbij ritmiek en verticaliteit zorgen voor een herkenbaar beeld dat aansluit bij de historische context. De plint is transparant en open, waardoor het gebouw een actieve relatie met de straat aangaat. Verticale geleding en variatie in metselwerkdetails geven de gevels diepte en rijkdom zonder overdadig te worden. Binnen zijn de woningen compact maar efficiënt georganiseerd, met veel aandacht voor daglicht en functionaliteit. Collectieve ruimten zoals de entree, de fietsenstalling en de dakterrassen, zorgen voor sociale meerwaarde en geven het gebouw een eigentijdse invulling. Duurzaamheid is zichtbaar in de materiaalkeuze, de aansluiting op het warmtenet en de inzet van groene dakterrassen. Het resultaat is een gebouw dat stevig en vertrouwd oogt, maar tegelijk fris en toekomstgericht is.

Opdrachtgever
Stichting Jongerenhuisvesting Enschede (SJHT)
Projectteam
Arthur van der Geest, Marko Matic, Tom Slots, Alfred Musters
Samenwerkingspartners
Dura Vermeer Bouw Hengelo, TBVA Vastgoedadvies, Mosterd Installatieadvies, Schreuders bouwtechniek B.V., ALCEDO
Jaar (oplevering)
verwacht eind 2025
Oppervlakte
5500 m2